Bilocale in vendita

Monfalcone, Via Duca D'Aosta
€ 78.000
2 locali 2 locali
50 Mq 50 Mq
1 bagno 1 bagno

Bilocale in vendita

Monfalcone, Via Duca D'Aosta

Descrizione annuncio

Tecnocasa, la più grande rete di intermediazione in Europa con 2.807 punti vendita in Italia e 4.022 nel mondo, vi propone:

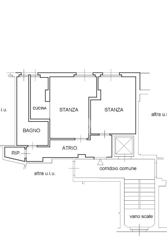
Nel cuore di Monfalcone, in posizione centrale e ben servita, proponiamo in vendita un bilocale di 50 mq, soluzione pratica per chi desidera la comodità di tutti i servizi sotto casa.

L’ingresso si apre su un corridoio lungo e funzionale, che distribuisce ordinatamente tutti gli ambienti in linea. Si parte dal soggiorno luminoso, arredato con zona pranzo, seguito dalla cucina, compatta ma ben organizzata. Proseguendo, si incontra il bagno finestrato, completo di vasca e lavatrice, e infine la camera matrimoniale, spaziosa e accogliente.

Un appartamento compatto, ben distribuito e facilmente gestibile, perfetto per single, coppie o come ottima opportunità di investimento in una posizione strategica della città.

Mostra tutto

Nelle vicinanze

Trasporto pubblico Trasporto pubblico
stazione di Monfalcone
stazione di Monfalcone
1,3 Km
Ronchi dei Legionari Sud
Ronchi dei Legionari Sud
2,2 Km
Trasporto pubblico
120 m
Monfalcone
Monfalcone
520 m
Trasporto pubblico
870 m
Scuole Scuole
Scuola Primaria Duca d'Aosta
230 m
Scuola Secondaria di 1° Grado "Giovanni Randaccio"
730 m
Centro di Formazione Professionale IAL FVG
810 m
Scuola Secondaria di Secondo Grado Michelangelo Buonarroti
870 m
Scuola Secondaria di Secondo Grado Sandro Pertini - ISIP - IPSIA
990 m
Farmacia Farmacia
Comunale N.1 Monfalcone
410 m
Farmacia San Nicolò
810 m
Tacchino Isabella
950 m
Farmacia Comunale 2
950 m
Farmacia Storica
1,3 Km
Ospedali Ospedali
Pronto Soccorso Monfalcone
800 m
Ospedale San Polo
890 m
Supermercati Supermercati
Eurospar
240 m
COOP
360 m
IN's
560 m
D Più
820 m
Coop
1,2 Km
Negozi Negozi
Panetteria Inglese
640 m
Bimbus Monfalcone
720 m
Panificio pasticceria Tamburin
790 m
Panificio Pasticceria Bistrot Bosio
950 m
Z
1,4 Km
Bar Bar
Billy Bar
390 m
Bar Nazionale
420 m
Bar De Pellegrin
440 m
Bar Commercio
460 m
Bar Tommaso
540 m
Ristoranti Ristoranti
Bar & Restaurant Adda
370 m
Pizzeria El Merendero
540 m
Pizzeria Trattoria Al Giardino
650 m
Caffè Ristorante Deo
710 m
Trattoria Nuovo Cavallino
750 m
Mostra tutto

Caratteristiche

Rif.:
61106641
Piano:
1 di 7 con ascensore (Piano basso)
Camere da letto:
1
Arredamento:
Parziale
Condizionamento:
Assente
Ascensore:
Mostra tutto
Prezzo Prezzo
€ 78.000
Rata mutuo Rata mutuo
€ 346 / mese
Spese annue Spese annue
€ 600
Proponi il tuo prezzoProponi il tuo prezzo

Classe Energetica

E
E
E
E
E
E
E
E
E
Anno di costruzione:
1980
Riscaldamento:
Centralizzato
Tipo impianto:
A radiatori
Tipo alimentazione:
Metano

Ti interessa visionare l'immobile?

Fissa un appuntamento  Fissa un appuntamento

Richiedi informazioni

* Questi campi sono obbligatori

Calcola il tuo mutuo

Semplice e senza impegno
Anticipo

( % )
Mutuo

( % )

pochi semplici passi

inserisci i tuoi dati
Questionario completato
Grazie per aver richiesto un appuntamento senza impegno con un nostro Consulente del Credito e Assicurativo.

Hai inserito correttamente tutti i dati necessari e a breve riceverai una e-mail con un link da convalidare per inviare i tuoi dati.
Affiliato
Emmefalcone Srl
Via Fratelli Rosselli, 8 34074 Monfalcone (GO)
Via Fratelli Rosselli, 8 34074 Monfalcone (GO)
Zona: Monfalcone
Mostra su mappa
Affiliato
Emmefalcone Srl
Via Fratelli Rosselli, 8 34074 Monfalcone (GO)

2025 Tecnocasa Franchising S.p.A. - P. IVA 08365160152 - Via Monte Bianco 60/A 20089 Rozzano (MI). Ogni agenzia ha un proprio titolare ed è autonoma. Privacy policy | Policy utilizzo | Cookie policy